Hrvatski Restauratorski Zavod
Aktualno
Novosti i obavijesti
Iz medija
Arhiv
Zavod
O Zavodu
Ustroj
Upravno vijeće
Stručno vijeće
Natječaji za radna mjesta
Praksa u HRZ-u
Pravni dokumenti
Planovi i izvještaji
Stručni ispiti
Djelatnosti
Publikacije
Stručni skupovi
Izložbe
Razvojni i međunarodni projekti
Stručne službe
Prirodoslovni laboratorij
Fotolaboratorij
Arhiv
Knjižnica
Opći podaci
Kontakt
Pristup informacijama
Zaštita podataka
Izjava o pristupačnosti
Impresum
Poveznice
Nabava
Javna nabava
Jednostavna nabava
Open search modal
Close search modal
Pretražite...
Pretražite
Navigacija
Naslovnica
Aktualno
Novosti i obavijesti
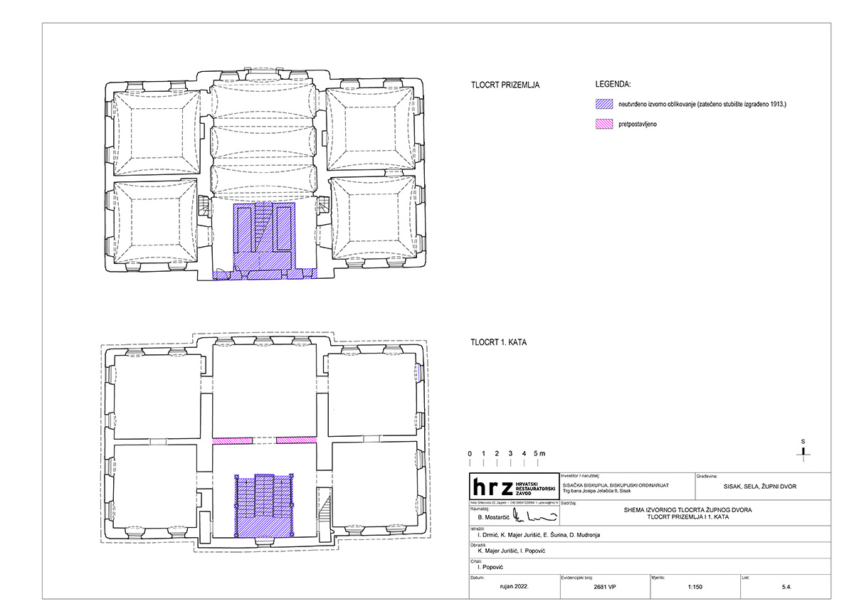
Župni dvor i crkva sv. Marije Magdalene u Selima kod Siska
Župni dvor i crkva sv. Marije Magdalene u Selima kod Siska
na vrh
Postavke pristupačnosti